Queenswood Mount, Leeds
£249,950
Fixed Price
Property Features
- Quiet Cul De Sac
- Off Street Parking
- Large Garden
- Two Reception Rooms
Property Summary
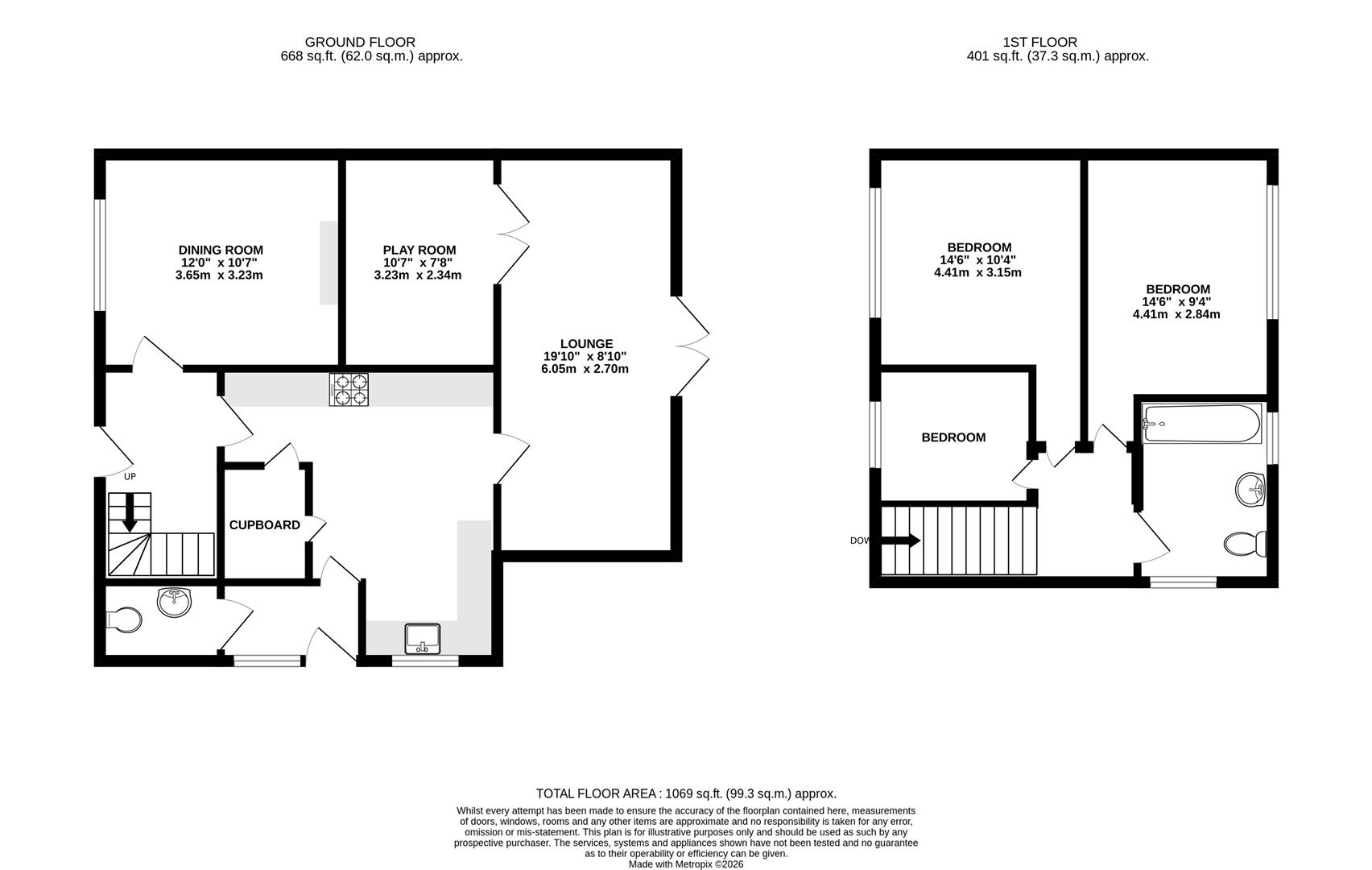
A three bedroom semi-detached house for sale on a quiet cul-de-sac in Headingley. With spacious gardens to the front and rear of the property and off street parking for multiple vehicles, this home is perfect for a family!
The ground floor comprises a generous kitchen with under-counter and over head storage. Side access from the kitchen also comprises a porch area. The living room to the rear of the property has a feature fireplace and French doors access to the rear garden. A separate snug area with fitted storage is accessed through the living room. To the front of the house, a dining room is accessed from a hallway.
Upstairs, there are two double bedrooms, with the master comprising fitted storage and views across the back garden. A third room is used as a single bedroom. The house bathroom contains a sink, WC and bath with shower over.
The ground floor comprises a generous kitchen with under-counter and over head storage. Side access from the kitchen also comprises a porch area. The living room to the rear of the property has a feature fireplace and French doors access to the rear garden. A separate snug area with fitted storage is accessed through the living room. To the front of the house, a dining room is accessed from a hallway.
Upstairs, there are two double bedrooms, with the master comprising fitted storage and views across the back garden. A third room is used as a single bedroom. The house bathroom contains a sink, WC and bath with shower over.








































